- Woonoppervlakte
- Circa 116 m²
- Perceeloppervlakte
- Circa 182 m²
- Bouwjaar
- Gebouwd in 1938
- Aantal kamers
- 6 kamers (3 slaapkamers)
Welkom aan de Stoopstraat 63 in Roosendaal, een heerlijke woning in een rustige, kindvriendelijke wijk. Hier woon je in de luwte van de stad, maar toch met alle gemakken binnen handbereik: scholen, winkels, openbaar vervoer en uitvalswegen zijn allemaal dichtbij. Een ideale plek voor gezinnen of stellen die op zoek zijn naar ruimte, comfort en gemak. Deze woning heeft alles in huis om jouw woondromen waar te maken. De moderne keuken is uitgerust met luxe inbouwapparatuur, de tuin is onderhoudsvrij en voorzien van meerdere overkappingen, en op de eerste verdieping vind je drie keurig afgewerkte slaapkamers. De master bedroom is bovendien uitgerust met airconditioning, ideaal voor de warme zomers! De royale woonkamer met grote raampartijen zorgt voor een heerlijke lichtinval en een gezellige sfeer. Zie jij jezelf hier al wonen? Wacht dan niet langer en plan snel die bezichtiging in! Dit zou zomaar jouw nieuwe thuis kunnen zijn.
Entree
Je komt binnen via een lichte, ruime hal waar je direct een gevoel van thuiskomen ervaart. Parkeren doe je gemakkelijk in de straat, waarna je via de hal toegang krijgt tot de woonkamer of via de trap naar boven kunt.
Wonen & Koken
De woonkamer is ruim en sfeervol, met een prachtige tegelvloer en strak afgewerkte muren. Dankzij ramen aan zowel de voor- als achterzijde valt het daglicht rijkelijk naar binnen, wat zorgt voor een frisse en levendige uitstraling.
De moderne keuken, grenzend aan de woonkamer, is voorzien van witte kastjes en luxe inbouwapparatuur zoals een koelkast, vriezer, vaatwasser en kookplaat. Ideaal voor de thuiskok!
Slapen, Dromen & Douchen
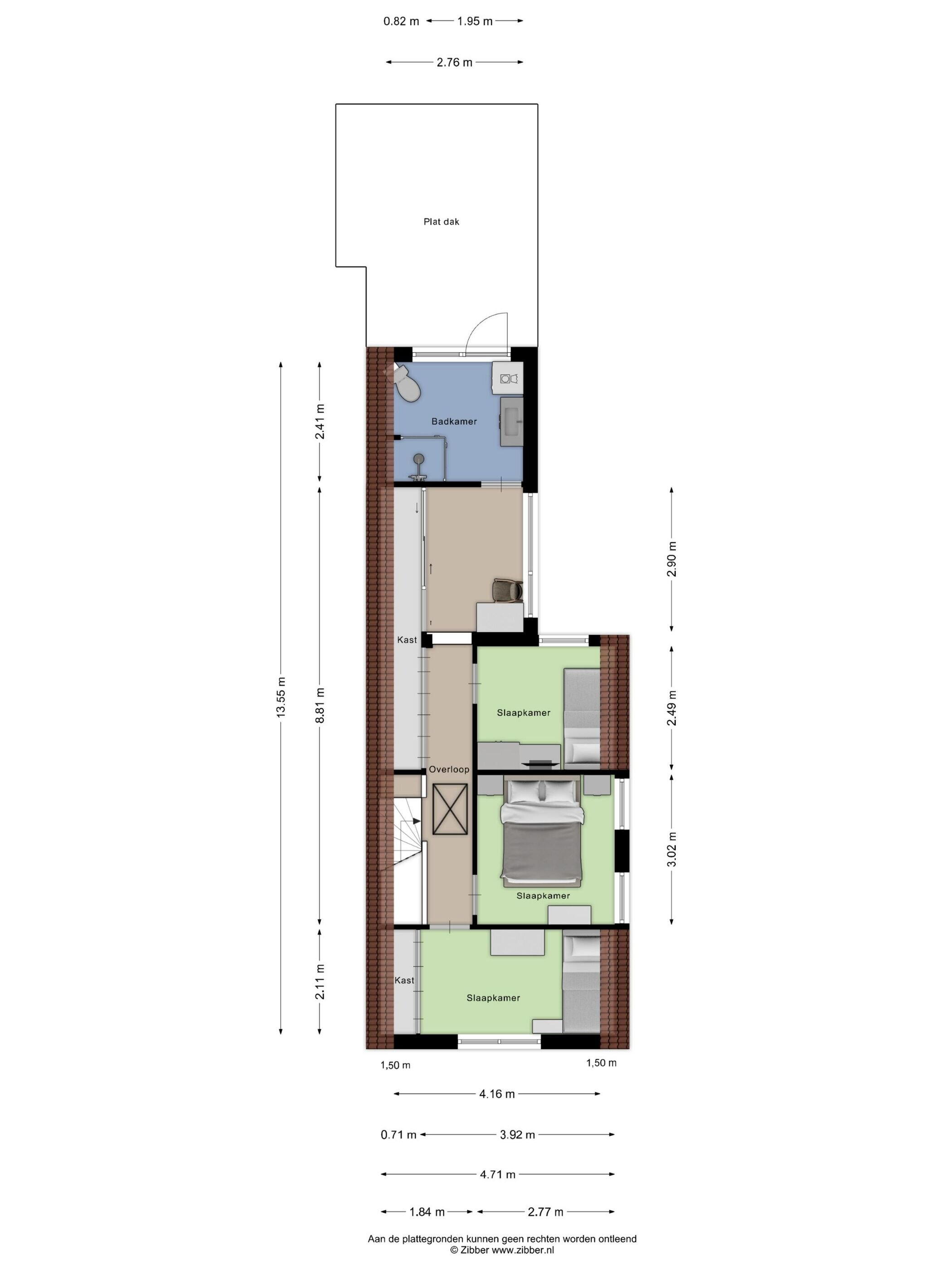
Op de eerste verdieping vind je drie smaakvol afgewerkte slaapkamers, variërend in grootte. Of je nu ruimte nodig hebt voor een thuiswerkplek, hobbykamer of kinderkamer, hier kan het allemaal. De master bedroom is bovendien uitgerust met airconditioning, zodat je ook in de zomer heerlijk slaapt. De badkamer is praktisch ingedeeld met een douche, wastafel en toilet. Hier vind je ook de aansluitingen voor de wasmachine en droger. Een deur biedt toegang tot een plat dak, een leuk extraatje met mogelijkheden!
Tuinieren, Zonnen & Genieten
De achtertuin is onderhoudsvriendelijk ingericht met een stukje gras en meerdere overkappingen. Direct aan het huis vind je een gezellige overdekte plek waar je een loungeset of buitentafel kwijt kunt, ideaal om het hele jaar door buiten te zitten, ook als het regent. Achterin de tuin bevindt zich een berging met nóg een overkapping. Genoeg plek dus voor je fietsen, gereedschap of om lekker droog buiten te zitten.
Omgeving en Faciliteiten
Deze woning ligt in een rustige buurt met een gemoedelijke sfeer. Op korte afstand vind je scholen, supermarkten, sportverenigingen en het openbaar vervoer. Ook het gezellige centrum van Roosendaal en de snelweg zijn goed bereikbaar. Hier woon je met alles binnen handbereik. De straat is rustig en kindvriendelijk, waardoor het hier prettig wonen is voor gezinnen en mensen die houden van een veilige, sociale omgeving.
Toelichtingsclausule NEN2580:
De Meetinstructie is gebaseerd op de NEN2580. De Meetinstructie is bedoeld om een meer eenduidige manier van meten toe te passen voor het geven van een indicatie van de gebruiksoppervlakte. De Meetinstructie sluit verschillen in meetuitkomsten niet volledig uit, door bijvoorbeeld interpretatieverschillen, afrondingen of beperkingen bij het uitvoeren van de meting. Lees de volledige omschrijving
Overdracht
- Vraagprijs
- € 315.000 k.k.
- Status
- Verkocht
Bouw
- Object type
- Eengezinswoning, geschakelde woning
- Soort bouw
- Bestaande bouw
- Bouwjaar
- 1938
- Soort dak
- Mansarde dak bedekt met pannen
Oppervlakte en inhoud
- Woonoppervlakte
- 116 m²
- Perceeloppervlakte
- 182 m²
- Inhoud
- 431 m³
- Externe bergruimte
- 9 m²
- Gebouwgeb. buitenruimte
- 17 m²
Indeling
- Aantal kamers
- 6 kamers (3 slaapkamers)
- Aantal badkamers
- 1 badkamer en 1 apart toilet
- Badkamervoorzieningen
- Douche, toilet, en wastafel
- Aantal woonlagen
- 2 woonlagen en een zolder
- Voorzieningen
- Airconditioning, natuurlijke ventilatie, en rolluiken
Energie
- Energielabel
- D
- Energielabel registratie
- 11-08-2025
- Isolatie
- Dakisolatie, dubbel glas, muurisolatie en vloerisolatie
- Verwarming
- Cv-ketel en gedeeltelijke vloerverwarming
- Warm water
- Cv-ketel
- Cv ketel
- Intergas (gas gestookt uit 2019, eigendom)
Buitenruimte
- Tuin
- Achtertuin
Bergruimte
- Schuur / berging
- Vrijstaande stenen berging
Parkeergelegenheid
- Soort parkeergelegenheid
- Openbaar parkeren
Energieverbruik in Roosendaal
Energielabel deze woning
Energielabel D
Publicatie energielabel: 11-08-2025
Stroomverbruik per jaar
(Gemiddelde tussenwoning in Roosendaal)
Gasverbruik per jaar
(Gemiddelde tussenwoning in Roosendaal)
* Cijfers zijn afkomstig van het CBS en bedoeld als indicatie en kunnen verschillen voor deze woning
Indicatie hypotheeklasten
Eigen inleg:
Spaargeld / overwaarde
Rente:
Laagste 10-jaars rente
Laagste 10-jaars rente
2,78% - Centraal Beheer - NHG
3,04% - Centraal Beheer - 80%
Laagste 20-jaars rente
3,29% - Centraal Beheer - NHG
3,52% - Centraal Beheer - 80%
Laagste 30-jaars rente
3,41% - Centraal Beheer - NHG
3,7% - Argenta - 80%
Hypotheek:
Bruto maandlasten: € 0 p/m
Netto maandlasten: € 0 p/m
Hoe berekenen we dit?
Het rentepercentage is gebaseerd op de laagste 10 jaars vaste rente voor één hypotheekdeel. De vermelde rente (2.78% met NHG) is gecontroleerd op 27-04-2026. Deze berekening is gebaseerd op een annuïteitenhypotheek die volledig wordt afgelost, waarbij de maandlasten gedurende de gehele looptijd gelijk blijven. De werkelijke rente en netto maandlasten kunnen variëren, afhankelijk van uw persoonlijke situatie en de hypotheekverstrekker. Raadpleeg een financieel adviseur voor een nauwkeurige berekening en advies. Aan deze berekening kunnen geen rechten worden ontleend; het dient enkel als indicatie.
Documentatie
Kadastrale kaart
Leefomgeving
Brochure
WOZ waarderapport
BAG uittreksel
Plattegronden PDF
Bezichtiging
Bod uitbrengen
Waardebepaling
Zoekopdracht
Alles downloaden
Zonnegrenzen bekijken
Op de kaart
Inwoners in Roosendaal
Cijfers voor postcodegebied 4702
- Totaal aantal inwoners
- 13185 inwoners
- Mannen
- 50%
- Vrouwen
- 50%
Inwoners in Roosendaal
Cijfers voor postcodegebied 4702
- tot 15 jaar
- 16%
- 15 tot 25 jaar
- 12%
- 25 tot 35 jaar
- 27%
- 45 tot 65 jaar
- 27%
- 65 en ouder
- 18%
Huishoudens in Roosendaal
Cijfers voor postcodegebied 4702
- Eenpersoons zonder kinderen
- 41%
- Meerpersoons zonder kinderen
- 26%
- Huishoudens zonder kinderen
- 67%
Huishoudens in Roosendaal
Cijfers voor postcodegebied 4702
- Huishoudens met één kind
- 9%
- Huishoudens met meerdere kinderen
- 24%
- Huishoudens met kinderen
- 33%
Woningen in Roosendaal
Cijfers voor postcodegebied 4702
- Woningen voor 1945
- 29%
- Woningen tussen 1945 en 1965
- 38%
- Woningen tussen 1965 en 1975
- 10%
- Woningen tussen 1975 en 1985
- 5%
- Woningen tussen 1985 en 1995
- 2%
Woningen in Roosendaal
Cijfers voor postcodegebied 4702
- Woningen tussen 1995 en 2005
- 8%
- Woningen tussen 2005 en 2015
- 8%
- Woningen na 2015
- 1%
- Huurwoningen
- 50%
- Koopwoningen
- 50%
Overige in Roosendaal
Cijfers voor postcodegebied 4702
- Gemiddelde WOZ waarde
- € 183.000,-
- Personen onder de 65 met uitkering
- 11%
Overige in Roosendaal
Cijfers voor postcodegebied 4702
- Adressen per km²
- 2116
- Stedelijkheid (schaal 1 op 5)
- 80%
Vakidioten met een passie voor vastgoed
Bij C&R Makelaars draait alles om jou en je woning. Wij zijn een frisse, energieke generatie makelaars met een passie voor mensen en de woningmarkt.
We geloven in een persoonlijke aanpak zonder poespas: eerlijk, transparant en altijd met een flinke dosis enthousiasme. Het verkopen van je huis is een belangrijke stap, en daarom begeleiden we je op een manier die bij jou past, van begin tot eind.
Met onze diepgaande kennis van de lokale markt geven we je waardevol advies dat perfect aansluit bij jouw situatie én dat van potentiële kopers.
Daarnaast staat ons creatieve team van vastgoedmarketeers klaar om jouw woning in de schijnwerpers te zetten. Met slimme en doordachte strategieën zorgen we ervoor dat je huis opvalt en het maximale resultaat behaalt.
Jouw tevredenheid is ons einddoel. We zetten alles op alles om je verwachtingen te overtreffen. Nieuwsgierig naar ons team? Klik op de button hieronder en maak kennis met ons!
Nieuwste reviews
-
Dion Landstra
Uitstekende communicatie en prima service! Heldere uitleg en transparant van begin tot eind. Bovendien: vakmensen die echt een stapje extra...
-
Yoeri Jongenelen
Ons huis super snel verkocht via C&R makelaars. Wat ons erg aansprak is dat ze duidelijk en transparant zijn. De communicatie verliep soepel...
-
Ronald Verhaard
Met veel effort toch succesvol afgerond. Dank voor de (after) service